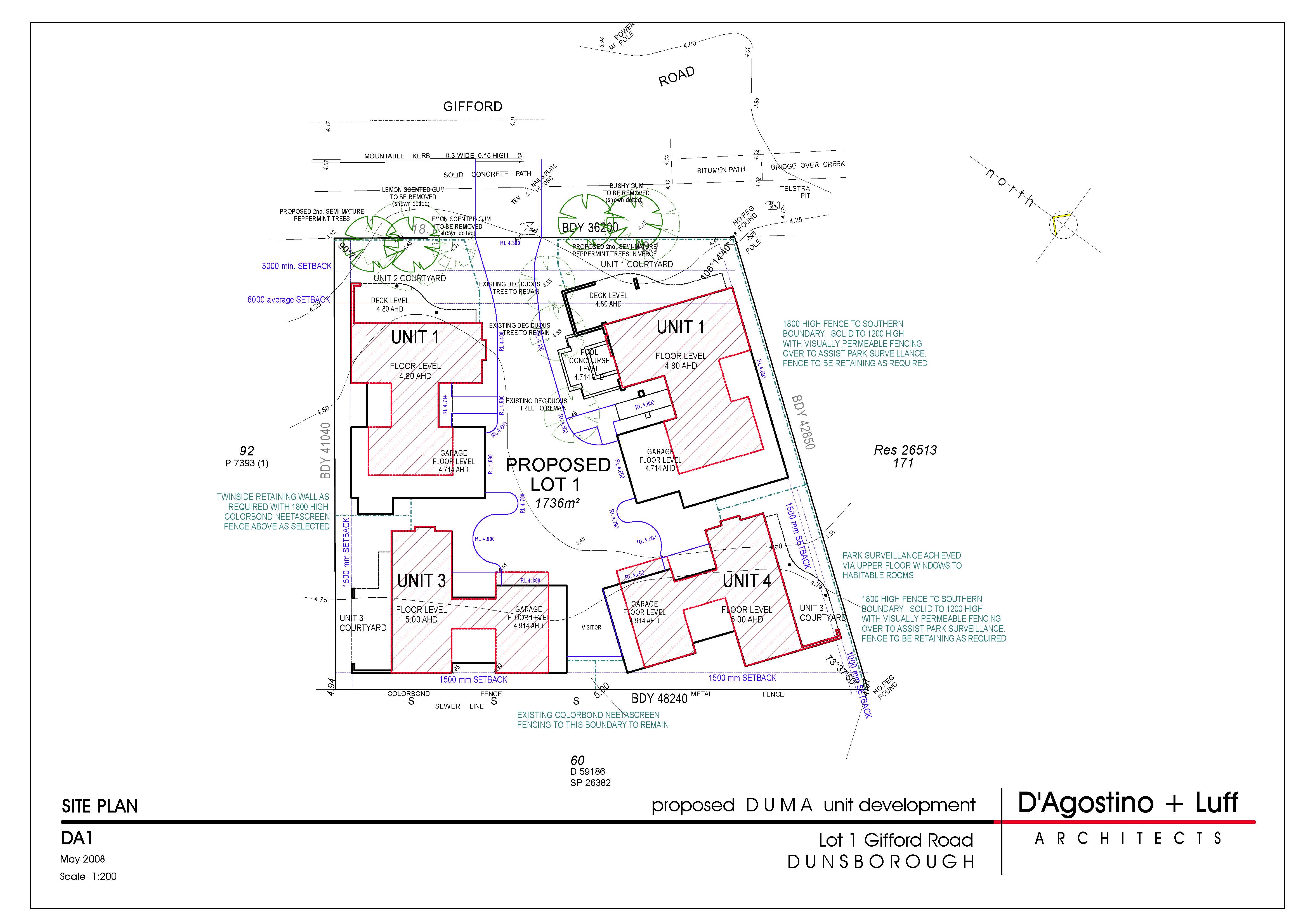
Dunsborough Grouped Housing Development

Address
Gifford Road, Dunsboorough
Construction
Rendered brickwork, weatherboard cladding, colorbond curved roof and local granite feature walls
Completion
Design development

These 4 two storey units are situated in Dunsborough. They have been designed with ground floor living, with attention given to the privacy of each unit. The materials used are rendered brickwork with weatherboard cladding, local Dunsborough granite and curved colorbond roof forms. The roofs have been broken into smaller components by use of a reduced pitch roof in order to reduce and scale of the homes.